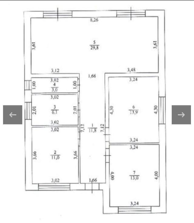
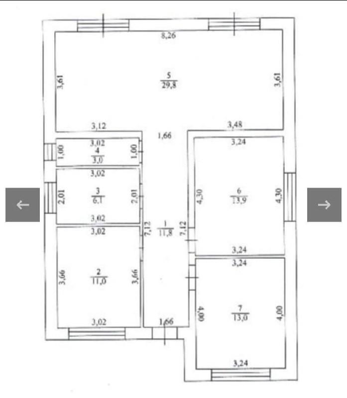
1-этажный дом 96 м2
Воронежская область, Рамонский район, Ямное село, Летний лагерь, 30Этажность1
Площадь участка5 сот.
Материал стенГазосиликатный блок
УчастокИЖС
КоттеджДа
ТаунхаусДа
ЭлектричествоДа
ГазДа
ВодопроводДа
КанализацияДа
Об объекте
🏡 Продаётся новый дом в Ямном. Площадь — 96 кв.м. Участок 5,5 соток Планировка включает: ✅ 3 отдельные спальни ✅ кухню-столовую ✅ санузел ✅ котельную ✅ прихожую Состояние — предчистовая отделка: стены выровнены, можно сразу начинать чистовую отделку под себя. Коммуникации: газ (заведён в дом) вода свет выгребная яма 📍 Отличная локация: Дом находится в развитом районе — рядом школа, детский сад, магазины, Пятёрочка и ресторан. До Сити-Парка «Град» — 5 минут, удобный выезд на трассу М4. 💰 Подходит под все виды ипотеки, включая семейную и господдержку. Документы готовы к сделке.

Рассчитать ипотеку
Узнайте свой индивидуальный расчет по ипотечным платежам
Стоимость объекта, руб.9 300 000 руб.









































