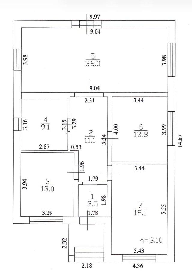
1-этажный дом 114 м2
Воронежская область, Новоусманский р-н, Новая Усмань село, Урожайная улицаЭтажность1
Площадь участка6 сот.
Жилая площадь46 м2
Площадь кухни36 м2
Материал стенГазосиликатный блок
УчастокИЖС
КоттеджДа
ТаунхаусДа
ЭлектричествоДа
ГазДа
ВодопроводДа
КанализацияДа
Об объекте
Готовы рассмотреть вариант обмена. Продаётся дом в микрорайоне СоловьиныйНовая УсманьПрямая продажа от застройщика. Дом 114 м2 с 3 спальными комнатами (13/19,1/13,8) м2 + кухня-гостиная 36 м2Сам дом стоит на ленточном фундаменте 1,2 метра с обратной отсыпкой;Стены 300 мм газоблок + облицовочный кирпич;Мягкая кровля + утеплитель 150 ммДом на стадии завершения строительства. В стоимость включены все коммуникации (свет, газ,вода)Асфальтированная дорога до самого участка

Рассчитать ипотеку
Узнайте свой индивидуальный расчет по ипотечным платежам
Стоимость объекта, руб.9 000 000 руб.















































































