1-этажный дом 96 м2
Воронежская область, Рамонский район, Ямное село, улица Летний лагерь, 2каЭтажность1
Площадь участка6 сот.
Жилая площадь68 м2
Площадь кухни29 м2
Материал стенБлочный
УчастокИЖС
КоттеджДа
ТаунхаусДа
ЭлектричествоДа
ГазДа
ВодопроводДа
КанализацияДа
Об объекте
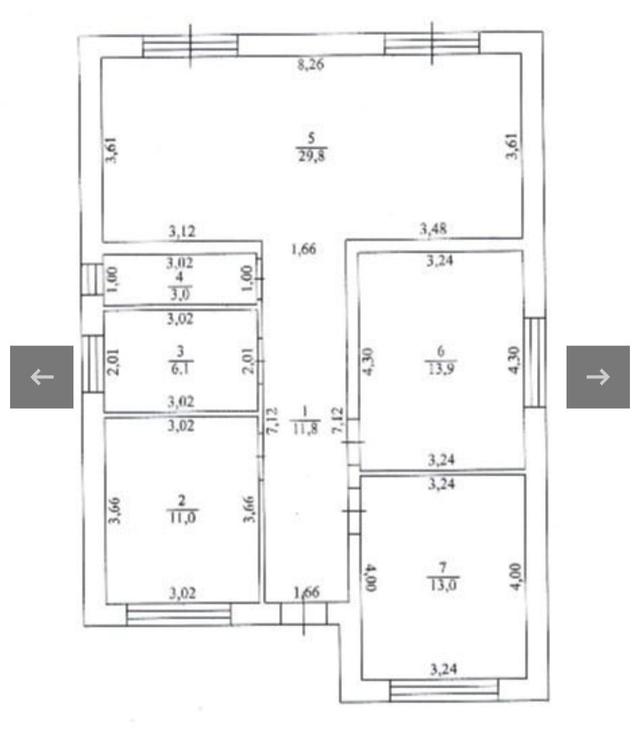
ДОМ ОТ ЗАСТРОЙЩИКА! ДОМА ЕЩЕ НЕТ. Начало строительства март-апрель 2026. Завершение этот год. Возможно раннее бронирование. Подходит под все виды ипотеки. Общая площадь 96 кв.м, три изолированные комнаты, кухня - гостиная, кладовая, санузел, котельная. Дом продаётся со всеми коммуникациями: газ, двухконтурный котёл, стяжка, электричество, скважина, три кольца 1.5м. Отделка White Box. Возможно дополнительно поставить забор! Возможно сделать чистовой ремонт! Подъезд к дому асфальтированный. Развитая инфраструктура: магазины, аптеки, школа, детский сад. Дом располагается на участке 4,95 сотки.

Рассчитать ипотеку
Узнайте свой индивидуальный расчет по ипотечным платежам
Стоимость объекта, руб.9 900 000 руб.



















