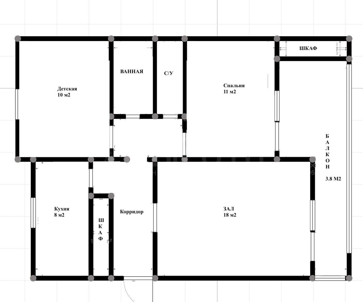
3 комнатная квартира 66.6 м2 этаж 9/9
Воронежская область, Воронеж, 60 Армии улица, 23Об объекте
В продаже отличная 3-к квартира в спальном районе со всей инфраструктурой. Вся мебель и техника остаются новому владельца. Квартира на завершающем этапе косметического ремонта и обновления мебели. Д.сад и школа во дворе, магазины, остановки, поликлиники и ТЦ Арена в пешей 2ух минутной доступности. В подарок прилагается кладовка между этажей. Квартира не угловая, распшонка, вид во двор на детскую площадку и на парк Арены и ул. Лизюкова. Чистый двор, хороший асфальт, с парковкой проблем нет, подъезды после ремонта, новый лифт, хорошие соседи. Есть все что нужно для жизни любой семьи в любом возрасте. Продается в связи с переездом в квартиру большей площади. Возможен торг, помощь в одобрении ипотеки на вторичное жилье со сниженной ставкой. Звоните, договоримся на просмотр.
